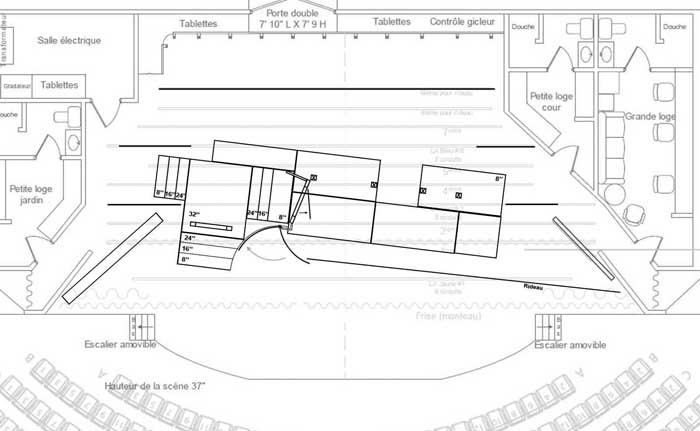
Le défi, 6 décors différents doivent se succéder dans le même espace,
en plus d'un décor principal servant à accueillir les invités.
Changements de décors en quelques minutes.
J'ai imaginé un dispositif caché par un rideau de scène. Lorsque celui-ci est fermé,
cela constitue le décor d'accueil.
Cliquez sur Plus d'infos pour déployer la suite:














Aucun commentaire:
Enregistrer un commentaire